
这是一款水利系统设备CAD图纸,需要AutoCAD、天正CAD等软件打开哦,也可以使用CAD看图软件直接打开查看。乐开网是一个专业的CAD图纸下载网站,拥有海量的室内外CAD图纸下载,注册加入会员即可全站下载哦。
包含了水泵,发电机,配件,管道等零件设备,是水利系统安装CAD图纸。
不一一赘述啦,请直接看下面模型的目录和截图展示:


























声明:本站所有资源,均为互联网公开渠道及本站会员上传所得。本站仅做网站管理维护。如若本站内容侵犯了原著者的合法权益,可联系我们进行处理。

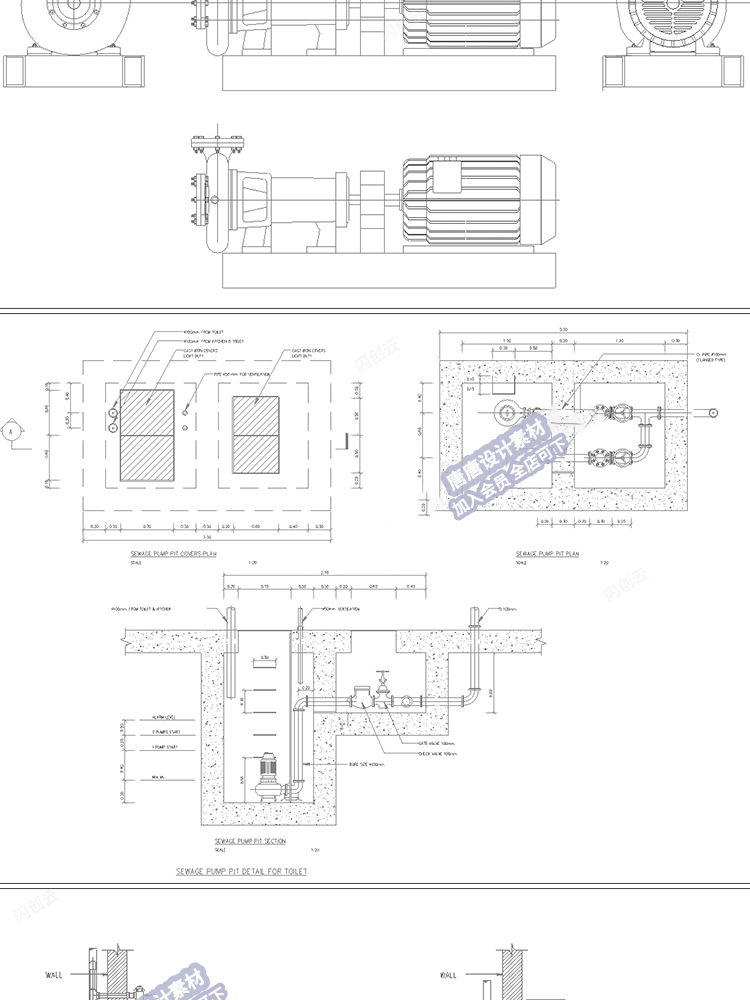
这是一款水利系统设备CAD图纸,需要AutoCAD、天正CAD等软件打开哦,也可以使用CAD看图软件直接打开查看。乐开网是一个专业的CAD图纸下载网站,拥有海量的室内外CAD图纸下载,注册加入会员即可全站下载哦。
包含了水泵,发电机,配件,管道等零件设备,是水利系统安装CAD图纸。
不一一赘述啦,请直接看下面模型的目录和截图展示:

























