首页
园林景观
交通 指示牌
人物植物动物
公园广场
庭院景观
景观小品
度假村
游乐场
居住区景观
室内图库
家具 灯具
工装图库
全屋定制
五金 开关
厨卫设施
屏风隔断
楼梯栏杆
线条罗马柱
背景墙 护墙板
铺装拼花
吊顶
乐器 摆件
门窗 窗帘
雕花 装饰画
制图规范
家装空间
工装空间
公共空间
办公空间
医院
商业空间
酒店民宿
餐饮空间
建筑图纸
公共建筑
别墅自建房
办公建筑
医院建筑
古建筑
商业建筑
大门入口
居住建筑
校园建筑
机电设备
弱电智能化
暖通
消防
电气
给排水
机械图纸
节点详图
室内节点
建筑节点
资料 模板
升级VIP
登录
首页
CAD图纸
机电设备
电气
正文
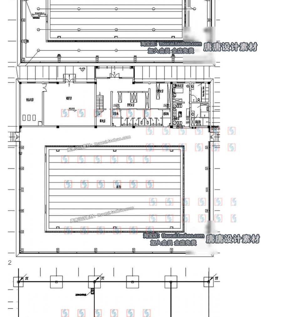
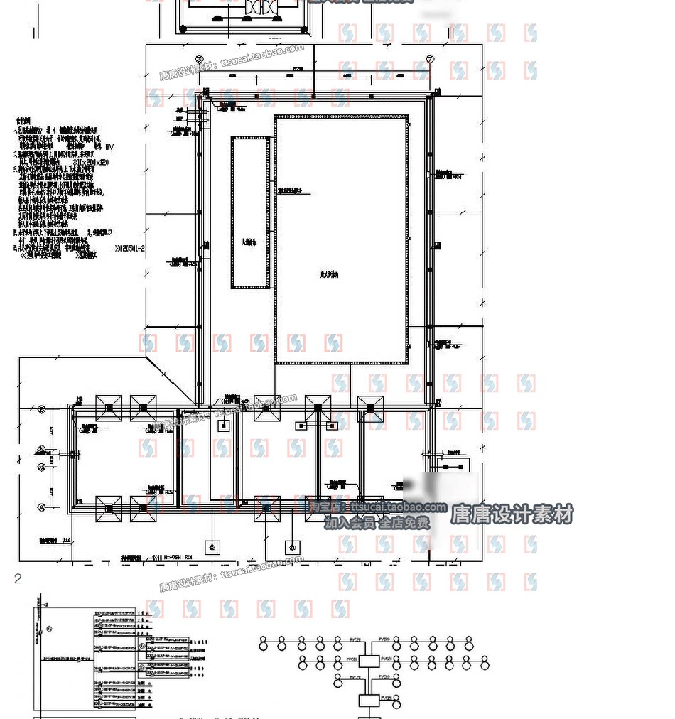
2 3层跳水游泳馆强弱电奥体中心电气智能化照明动力系统CAD施工图免费下载
电气
声明:本站所有资源,均为互联网公开渠道及本站会员上传所得。本站仅做网站管理维护。如若本站内容侵犯了原著者的合法权益,可联系我们进行处理。
游泳馆电气cad
分享
收藏
点赞(
0
)
相关推荐
暂无相关推荐
2 3层跳水游泳馆强弱电奥体中心电气智能化照明动力系统CAD施工图免费下载
免费下载
下载权限:
本站VIP会员
软件|AutoCAD/天正CAD等
下载遇到问题?可联系客服或反馈
近期文章
北京10层商业办公楼电气CAD施工图纸带地下室照明动力配电系统图免费下载
51层超高层办公楼强电气消防CAD施工图纸应急疏散照明系统平面图免费下载
北京超高层综合办公楼电气CAD施工图应急照明疏散门禁广播系统图免费下载
高层酒店消防系统CAD平面图纸火灾自动报警控制地下室屋面布置图免费下载
5 6层医疗服务大楼综合办公楼电气CAD施工图纸强电应急插座布置图免费下载
活动卡券
手动复制CDK码使用,先用先得
无
xxxxxxxxx
失效
无
xxxxxxxxx
失效
您可以
马上登录
或
立即注册
本站官方淘宝店:
唐唐设计素材
进淘宝店可单独购买模型图纸