首页
园林景观
交通 指示牌
人物植物动物
公园广场
庭院景观
景观小品
度假村
游乐场
居住区景观
室内图库
家具 灯具
工装图库
全屋定制
五金 开关
厨卫设施
屏风隔断
楼梯栏杆
线条罗马柱
背景墙 护墙板
铺装拼花
吊顶
乐器 摆件
门窗 窗帘
雕花 装饰画
制图规范
家装空间
工装空间
公共空间
办公空间
医院
商业空间
酒店民宿
餐饮空间
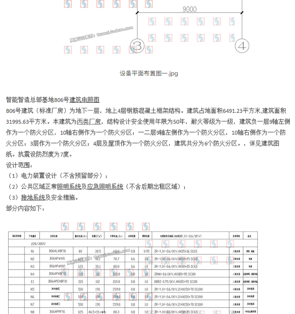
建筑图纸
公共建筑
别墅自建房
办公建筑
医院建筑
古建筑
商业建筑
大门入口
居住建筑
校园建筑
机电设备
弱电智能化
暖通
消防
电气
给排水
机械图纸
节点详图
室内节点
建筑节点
资料 模板
升级VIP
登录
首页
CAD图纸
机电设备
电气
正文
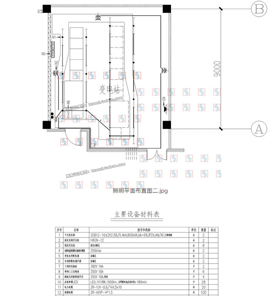
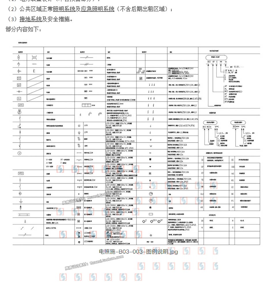
4层智能智造总部基地厂房建筑电照CAD施工图供电照明电力平面图纸免费下载
电气
声明:本站所有资源,均为互联网公开渠道及本站会员上传所得。本站仅做网站管理维护。如若本站内容侵犯了原著者的合法权益,可联系我们进行处理。
厂房cad
分享
收藏
点赞(
0
)
相关推荐
活动板房彩钢板阳光板钢架结构厂房施工地临时用房CAD施工图纸dwg免费下载
成都5 7多层厂房电气设计CAD施工图弱电监控系统图地下室总平面图免费下载
彩钢板屋顶玻璃阳光房钢架结构厂房车间双T型面节点大样cad施工图免费下载
4层智能智造总部基地厂房建筑电照CAD施工图供电照明电力平面图纸免费下载
免费下载
下载权限:
本站VIP会员
软件|AutoCAD/天正CAD等
下载遇到问题?可联系客服或反馈
近期文章
卫生院框剪结构住院楼电气深化CAD施工图照明系统总平面布置图纸免费下载
2层射击文化体育馆电气供电照明插座消防电视电话系统CAD平面图纸免费下载
大学校体育中心馆照明插座低压供电气干线防雷系统CAD平面施工图免费下载
2 3层跳水游泳馆强弱电奥体中心电气智能化照明动力系统CAD施工图免费下载
贵州2层体育文化馆电气弱电照明动力广播监控火灾系统CAD平面图纸免费下载
活动卡券
手动复制CDK码使用,先用先得
无
xxxxxxxxx
失效
无
xxxxxxxxx
失效
您可以
马上登录
或
立即注册
本站官方淘宝店:
唐唐设计素材
进淘宝店可单独购买模型图纸